Situation mit Grundriss EG
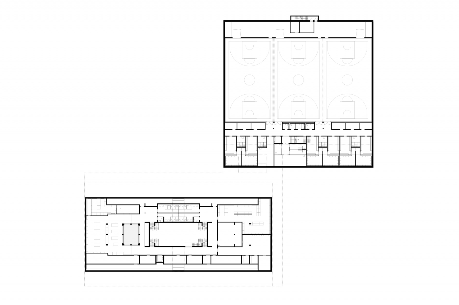
1. Untergeschoss
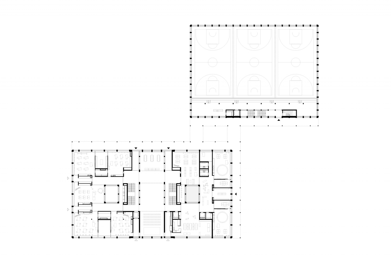
Erdgeschoss
2. Obergeschoss
Schnitt SH (Treppenhaus)
Schnitt TH-SH

Primarschulanlage Surbaum Reinach

  • Auftraggeber
    Gemeinde Reinach
  • Wettbewerbsverfahren
    2-stufige Gesamtleistungsstudie 2018–2019: 1. Preis
  • Realisierung
    2020-2025
  • Gesamtleiter TU 
    Gross Generalunternehmung AG, Brugg
  • Wettbewerbsteam Masswerk
    René Bosshard, Matthias Baumann, Judith Hopfengärtner, Manuel Silva, Michelle Anliker
  • Projektteam Masswerk
    René Bosshard, Judith Hopfengärtner, Maria Behr, Younjin Cho, Marc Scheidegger, Guy Strickner, Mariana Sousa
  • Fachplaner
    Landschaft: Appert Zwahlen Partner AG, Cham
    Bauingenieur: Funk & Partner AG, Urdorf
    Haustechnik: PB P.Berchtold Ingenieurbüro für Energie und Haustechnik, Sarnen
    Bauphysik: Martinelli & Menti AG, Luzern
    Elektroingenieur: Schäfer Partner AG, Lenzburg
    Lichtplaner: Lichtbau GmbH, Bern
    Fassadenplaner: PPEngineering GmbH
  • Fotografie
    Tom Bisig, Basel

Das dreigeschossige Schulhaus und die zu einem Drittel in den Boden versenkte Turnhalle sind entlang einer zentralen Erschliessungsachse angeordnet. Durch den Versatz der Baukörper in Ost-West- und Nord- Südrichtung entstehen Aussenräume, welche die durchgrünte Struktur der Umgebung aufnehmen. Auf diese Weise wird die Schule in alle Richtungen mit dem angrenzenden Quartier verbunden.

Die öffentlichen Innenräume beider Gebäude liegen entlang der überdachten Achse. Das Foyer der Turnhalle bietet einen direkten Blick auf die darunter liegenden Sportfelder, während die mittig situierte Pausenhalle sich quer durch das gesamte Gebäude erstreckt und den Blick durch das Schulhaus hindurch freigibt. Sie ist flexibel unterteilbar und kann auch als Aula, Foyer oder für den Mittagstisch genutzt werden. Im Erdgeschoss befinden sich Bibliothek, Werkräume, zwei Kindergärten und das ausserschulische Betreuungsangebot.

Die Unterrichtsgeschosse entsprechen in der Konzeption dem Bedürfnis nach Heimat und Identität innerhalb einer möglichst offenen und flexiblen Struktur. Sie sind durch eine strenge Symmetrie geprägt. Zwei grosse, in sich gegenläufig angeordnete Treppenanlagen rahmen eine zentrale multifunktionale Mittelzone. Die Klassenbereiche sind wie in früheren Projekten als Lern- beziehungsweise Stufengemeinschaften im Sinne einer Lernlandschaft konzipiert. Sie setzen sich aus zwei Stufeneinheiten zusammen, die jeweils in Form von sechs Klassenzimmern und zwei Halbklassenzimmern entlang der Fassade um eine frei möblierbare Mitte an den beiden Lichthöfen angeordnet sind. Je zwei Gruppenräume und eine gemeinsame Teeküche ergänzen das Raumangebot.

Beton, Holz und Glas prägen die Materialisierung im Innern und ermöglichen eine hohe Transparenz. Die aus rotem Klinkermauerwerk mit Pilastern gegliederte Fassade des Gebäudes strahlt die wertige und nachhaltige Selbstverständlichkeit von frühen gewerblichen und industriellen Bauten aus.