Eingangsbereich
Offene Bürofläche / Pausentresen
Sitzungszimmer / Display
Modell-/ Arbeitsbereich mit Oblicht
Offener Arbeitsbereich
Aussicht Terrasse

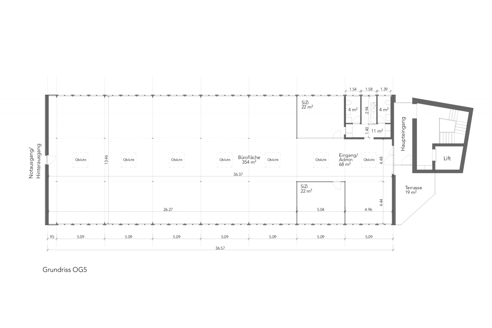
Attraktive Bürofläche zu vermieten

 

 

An der Brünigstrasse 25, im attraktiven Tribschenquartier in Luzern vermieten wir im 5. Obergeschoss grosszügige Büroflächen in Ateliergemeinschaft. Die gesamte Grossraum-Bürofäche – inklusive WC’s, kleine Küche, Empfang und 2 Sitzungszimmern – beträgt rund 480m2. Mehr oder weniger die Hälfte der Fläche kann nun gemietet werden, also +/- 240m2. Die gesamte Fläche ist voll möbliert, installiert und bezugsbereit, wie im beiliegenden Grundrissplan ersichtlich.

Die Räumlichkeiten sind in 10 Min. zu Fuss vom Bahnhof Luzern zu erreichen. Einzelne Parkplätze und viele Besucherparkplätze stehen in der zugehörigen Tiefgarage zur Verfügung. Das Haus und das Büro im 5. OG  ist behindertengängig und mit einem Lift direkt erschlossen. Der überhohe Raum unter dem gewölbten Dach wird über durchgehende Fensterbänder auf beiden Längsseiten und grosse Oblichter belichtet und belüftet. Die Aussicht über die Dächer der Stadt auf die Rigi und vom kleinen zugehörigen Balkon auf den Pilatus ist beeindruckend.

Wenn Sie interessiert sind an repräsentativen, ruhigen Arbeitsräumen in inspirierender Bürogemeinschaft, so melden Sie sich doch bitte bei:

Frau Nicole Ludin
041 311 19 19
nicole.ludin@masswerk.com